HHR273 – Low Maintenance, Easy Shift! For Removal
- House Types: Houses
- Offer type: Under Contract
- City: Auckland
- Located at: Auckland
- Street: Viewing by Appointment , Viewing onsite at location
- Bedrooms: 3
- Bathrooms: 1
- Toilet: 1
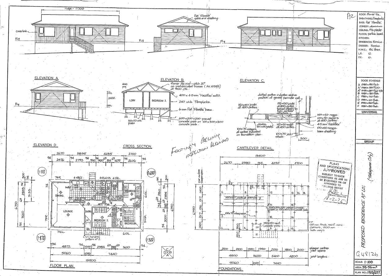
- Building area: 93.56 m²
Features
- 1 Bathroom
- 3 Bedroom
- Aluminium Joinery
- Hardie Plank
- Laundry
- Modern kitchen
- one piece move
- Seperate Toilet
Details
This solid 93.56m2 Hardi Plank home is a great option for anyone looking to add extra space to their property or start a new project without the cost of building from scratch. With aluminium joinery throughout and a practical layout, it’s a straightforward, low-maintenance choice. Inside, you’ll find three good sized bedrooms, a modern kitchen, a separate toilet, and a tidy bathroom. The home also includes a dedicated laundry, keeping everything organised and easy to use. It’s a simple, functional layout that will suit a wide range of sites. Key Details:
- Hardi Plank cladding
- Aluminium joinery
- Three bedrooms
- Modern kitchen
- Bathroom with separate toilet
- Laundry
- Easy one piece shift
Pricing includes this home, and its relocation to your level site, onto Council passed NZ3604 standard timber pile foundations within a 100 kilometer radius. If distance exceeds 100 kilometers, please contact us for pricing.
Check out all of our homes at https://www.removalhomes.co.nz or call Karl on 027 382 4628 or e-mail to office@removalhomes.co.nz We will help you with your building consent plans, and entire process.
- ID: 10939
- Published: January 16, 2026
- Last Update: May 19, 2026
- Views: 1583