LITTLE RIPPER FOR SALE/REMOVAL! – HHR260
- House Types: Minor Dwellings
- Offer type: For Sale , New Stock
- City: Auckland
- Located at: Auckland
- Street: Viewing by Appointment , Viewing onsite at location
- Bedrooms: 2
- Bathrooms: 1
- Toilet: 1
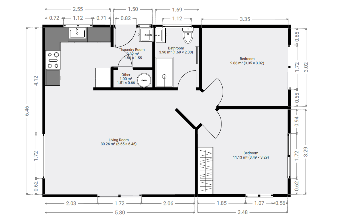
- Building area: 58.45 m²
Features
- 1 Bathroom
- 2 Bedrooms
- Aluminium Joinery
Details
Looking for a hassle-free investment? This two-bedroom minor dwelling is now available for removal to your ideal site!
Key Features:
- Size: 58.45m² of well-designed living space
- Bedrooms: 2 cozy bedrooms, perfect for small families or tenants
- Condition: low-maintenance condition—move in or rent out with ease!
- Ideal Rental Opportunity: Great potential for consistent rental income! Whether you’re looking to expand your property portfolio or create a cozy getaway, this minor dwelling offers flexibility and charm. Don’t miss out on this fantastic opportunity!
Contact us today to learn more and schedule a viewing! Your new investment awaits!
Pricing includes this home, and its relocation to your level site, onto Council passed NZ3604 standard timber pile foundations within a 100 kilometer radius. If distance exceeds 100 kilometers, please contact us for pricing. Check out all of our homes at https://www.removalhomes.co.nz or call Fleur on 027 459 9386 or e-mail to fleur@removalhomes.co.nz
We will help you with your building consent plans, and entire process. Haines have a wealth of experience and knowledge in the House Moving industry and are committed to ensuring that the purchase and relocation process runs smoothly.
- ID: 10485
- Published: July 3, 2025
- Last Update: November 12, 2025
- Views: 1109